說到箱式衛生間,或許很多人都會覺得陌生,不清楚這是什么意思。其實,箱式衛生間也稱同層排水衛生間。衛生間同層排水是一種衛生間裝修常用的一種排水方式。今天就給大家好好介紹一下箱式衛生間以及對于箱式衛生間漏水問題是怎么規范處理的。

衛生間漏水怎么辦——箱式衛生間介紹
箱式衛生間,就是所有排污口或排污橫管都位于自家的樓層內,不貫穿樓板,僅僅是主排污豎管貫穿下串聯。一旦發生了需要疏通的問題,基本上直接在本樓層就能解決了。不必干擾到下層住戶,也能維系好鄰里關系。
衛生間漏水怎么辦——箱式衛生間優缺點
1、箱式衛生間優點。
與普通衛生間相比,衛生間同層排水有很多優點,比如:管道不用穿過樓板,降低了漏水的幾率;可在自家樓層隨意設計布置管線,馬桶、洗手盆位置可任意改動;可降低排水時的噪音;樓下頂面無管道,美觀且裝修更方便……
2、箱式衛生間缺點。
箱式衛生間也有不少缺點。比如:因安裝復雜、管材質量要求高等,造價相對比較高;因大量管道在墻體內布置,和土建、裝修工程施工配合需更加緊密;如果出現漏水情況,不好維修,所以在裝修時務必要對防水質量嚴格把關,降低后期維修情況;存水彎堵了的時候,同層排水不易清理……

衛生間漏水怎么辦——箱式衛生間防水維修
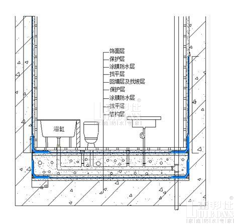
箱式衛生間若發生滲漏水,維修較復雜,需要將箱式衛生間回填層全部掏除,重新做防水。與普通衛生間不同的是,箱式衛生間在做防水施工時,要做兩道防水,第一道防水做在結構樓板上,防止管道破壞漏水引起樓下滲漏;第二道做在回填層之上,下沉式衛生間回填之后,即貼磚之前需要做一道防水層。一起看看箱式衛生間拆除磚維修方案吧。
適用范圍:適用于民用建筑中的箱式衛生間,一般平立面展開面積10~25平米。
施工工藝:聚合物水泥防水涂料施工工藝。

材料性能:涂膜拉伸強度高,延伸率好,可覆蓋細微裂縫;可在潮濕基面上施工,并與基層粘結牢固;施工工期短,產品性價比高。
標準化工藝流程:施工前準備(遮蔽保護、工器具準備)——潔具拆除——拆除飾面層、防水層——基層處理——細部節點增強——多遍聚合物水泥防水涂料涂刷——結果檢測(閉水試驗)——輕質材料回填——保護層恢復——細部節點增強——多遍聚合物水泥防水涂料涂刷——結果檢測(閉水試驗)——保護層施工——恢復飾面層——恢復潔具——清理施工現場。
衛生間排水方式類型眾多,各有利弊。其中,隨著同層排水技術日漸成熟,同層排水系統如今被應用于越來越多的家庭住宅。但要謹記,箱式衛生間維修困難,在發生漏水時,業主朋友要請專業人員進行維修;防水維修專業人員在對箱式衛生間進行防水維修時,要謹慎對待,正確選材并注意各個施工環節的要點,一次性解決防水,讓防水維修不再反復。